Architektur 
Design
brandschutz
nachhaltigkeit

Über uns

VR Plan Architects ist ein 2025 gegründetes Architekturbüro mit Sitz in Pristina.
Unsere Leistungen erstrecken sich von der Beratung und Projektentwicklung über alle Leistungsphasen einschließlich Projekt- und Bauleitung. Durch unsere Erfahrung begleiten wir jedes Projekt vom ersten Strich des Entwurfs bis zu Fertigstellung.

Für den deutschen Markt bieten wir Leistungsphasen 1-5 gemäß HOAI.

Wir bieten auch die Erstellung von Brandschutzkonzepten für verschiedene Projekte im Rahmen des Genehmigungsverfahren an. Diese werden entsprechend den geltenden Rechtsvorschriften und unter Berücksichtigung der Besonderheiten ihres individuellen Projekts erstellt.

Durch den engen Kontakt und intensiven Austausch mit unseren Kunden und Kenntnis ihrer Anliegen und Wünsche entwickeln wir langfristige, nachhaltige und passende Lösungen und Strategien.

Flexibilität und Nachhaltigkeit stehen im Mittelpunkt. Mit diesem Hintergrund erstellen wir individuelle Konzepte für verschiedene Gebäudetypologien – der Mensch und die Nutzung stehen dabei immer im Mittelpunkt.


Projekte

Wettbewerb
Vorschuleinrichtung
Kosovo

Wohnbebauung
Leimet III
Baufeld E

Brandschutzkonzept MFH,
Baufeld H Leimet,
Bad Säckingen

Brandschutzkonzept MFH,
Baufeld E Leimet, 
Bad Säckingen

Wettbewerb
Venetian Villa 
Italy

Büro- und Wohngebäude,
Eberts´ Garten,
Baden-Baden

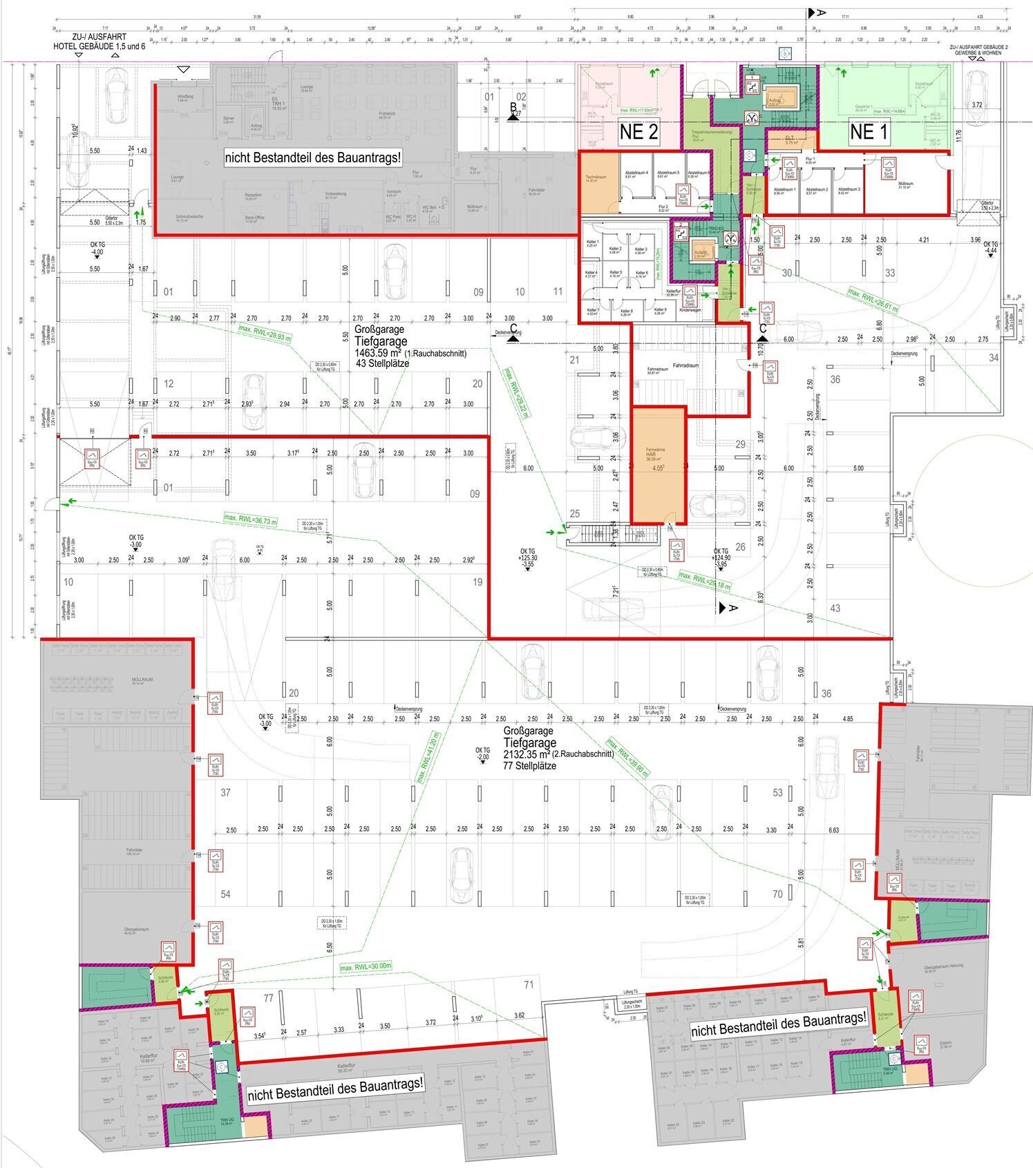
Brandschutzkonzept Büro- und Wohngebäude, Baden-Baden

Wohnbebauung Leimet III
Baufeld G

Brandschutzkonzept MFH,Baufeld G Leimet, Bad Säckingen

Wettbewerb Denver
Affordable Housing
Challenge

Brandschutzkonzept MFH,
Eberts´ Garten,
Baden-Baden

Einfamilienhaus,
Hajvali,
Prishtina

Pflegeheim,
Bad Krozingen

Das Team

Valdrin Rrahmani

Geschäftsführer


Qendresa Zeneli Rrahmani

Büromanagement


Arlinda Asllani

BA Architektur


KontaKT

Anschrift:
Luan Haradinaj, Eingang 76, 10000 Prishtine, Kosovo

E-Mail: vrrahmani@outlook.de

Tel:
+383 44 672971